64 Instalacion Electrica De Una Casa 2021 (Imagenes)

4k Wallpapers and HD.

Instalacion Electrica De Una Casa. Familia, empezamos con la instalación eléctrica de nuestra casa (taller jejejeje) y lo hacemos desde el principio. En este video vamos a replantear toda la i.

Foto: Reparacion de Instalacion Electrica en Casa Habitacion de C.m.c Construccion Y ...
Foto: Reparacion de Instalacion Electrica en Casa Habitacion de C.m.c Construccion Y ... (Abbie Williamson)
La electricidad en casa es un elemento fundamental para el día a día y para realizar muchas de las tareas domésticas diarias. Si eres un profesional electricista o un aficionado de hacer por ti mismo reparaciones eléctricas o remodelaciones en casa, es importante saber exactamente cómo hacer una instalación eléctrica en casa, conocer el esquema del paso de los cables, sus mecanismos, el cableado general y el cableado más específico como el de un dormitorio. Nosotros te proponemos hacerlo con una simple hoja de papel.

Cuánto cuesta la reforma e instalación eléctrica de un piso o vivienda unifamiliar, lee este artículo para conocer precios, consejos y cómo ahorrar.

Incluye los equipos necesarios para asegurar su correcto funcionamiento y la conexión con los aparatos eléctricos correspondientes.

INSTALACIÓN ELÉCTRICA DE UNA VIVIENDA: CGMP - CUADRO GENERAL DE MANDO Y PROTECCIÓN

Instalacion electrica en una vivienda. Pasos para ahorrar dinero...

Foto: Reparacion de Instalacion Electrica en Casa Habitacion de C.m.c Construccion Y ...

Plano de instalación eléctrica vivienda (3.89 MB) | Bibliocad

Instalacion electrica de vivienda en AutoCAD | CAD (22.53 KB) | Bibliocad

Maqueta de vivienda con (Instalaciones Eléctricas) SUPER REALISTA!!!! - YouTube

Instalacion electrica de una casa 1/7 INSTALACIONES ELECTRICAS - YouTube

Consejos y precios sobre la electricidad de una casa - Habitissimo

Los blog de 3ºB: Fotografia de una instalación eléctrica

Instalación eléctrica de casa nueva o usada | Yo Instalo

Resultado de imagen para instalacion electrica domiciliaria | Casa Sierra | Pinterest | Search

COMO PROYECTAR UNA INSTALACIÓN ELÉCTRICA DE UNA CASA

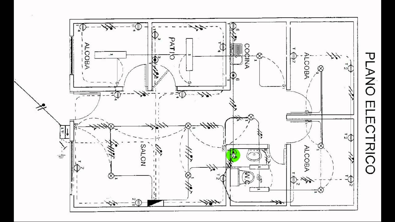
Ciencias Graficas: Planos Electricos con Simbologia y Diagrama

Plano electrico casa habitacion en AutoCAD | CAD (411.29 KB) | Bibliocad

instalacion electrica MODELO 3D - Buscar con Google | ETXEBIZITZETAKO INSTALAZIOAK | Pinterest ...

Instalaciones Eléctricas en Casa | Construye Bien | Maestro

Instalación Eléctrica en Vivienda realizada por el Alumno Ramón Gallardo.mp4 - YouTube

Instalacion electrica de una casa 5/7 INSTALACIONES ELECTRICAS - YouTube

Foto: Instalacion Electrica Casa Nueva de Djcconstrucciones #170098 - Habitissimo

Presentación Instalación Eléctrica en Vivienda de Manuel Roldán 1º PCPI IES Felipe Solís - YouTube

Apuntes para la Instalación eléctrica de una vivienda - YouTube

Instalacion electrica de una casa 6/7 INSTALACIONES ELECTRICAS - YouTube

representacion de una instalacion electrica a escala - YouTube

Foto: Reforma de Instalación Eléctrica de Vivienda de Instalaciones Eléctricas Lorenzo Gutiérrez ...

Instalación Eléctrica de una vivienda. - YouTube

Instalacion electrica en una vivienda. Pasos para ahorrar dinero...

Cuadro electrico vivienda general monofasico 220v ~ Esquemas eléctricos

Instalacion electrica de una vivienda - YouTube

Remodelación de Instalación Eléctrica de una Casa | Ideas Electricistas

Instalación Eléctrica en Vivienda realizada por el Alumno Javier Martínez Aguilar.mp4 - YouTube

Foto: Instalación Electrica de Casa Habitacion. de Servicio de Mantenimiento Integral para el ...

Presentación Vivienda de Sergio y Jose David.mp4 - YouTube

Presentación Instalación Eléctrica en vivienda realizada por Javier Raya - YouTube

(PDF) InstalacIones eléctrIcas en VIvIendas

Electricista: Tareas y funciones

Presentación Vivienda Araceli.mp4 - YouTube

instalacion electrica vivienda | Plano instalacion electrica, Plano eléctrico, Instalación eléctrica

Proyecto de Instalacion Electrica de Una Casa Residencial Part1

TECNOFLAVIO : INSTALACIONES EN LAS VIVIENDAS

instalacion electrica plano 5 - YouTube

Partes de la instalación eléctrica de una casa-Casas Ecológicas

Interruptores | Bricolaje casa

Paso a paso de la instalación eléctrica de una vivienda, medicion - A la Obra Maestros

Instalacion electrica de una casa 4/7 INSTALACIONES ELECTRICAS - YouTube

⚠️⚡️ Instalacion ELECTRICA residencial 🔌🏠 (De una CASA) ️ - YouTube

Instalaciones Eléctricas en Viviendas | Ideas Construcción Casa

Instalación eléctrica interior de la vivienda

Instalacion de la red Electrica de una casa - YouTube

ENSAMBLE: DIAGRAMA DE INSTALACION ELECTRICA DE UNA CASA

Instalación eléctrica en una construcción residencial nueva - YouTube

Cómo se calcula las instalaciones eléctricas de una casa

Instalación eléctrica básica de una casa - YouTube

Instalacion electrica casa habitacion

Remodelación de Instalación Eléctrica de una Casa | Ideas Electricistas

Instalacion Electrica en Tu Casa - YouTube

Instalacion Eléctrica de una Casa o Vivienda. Aprende Facilmente.

como hacer una instalacion electrica basica - Buscar con Google | electricidad | Cableado ...

Toma de tierra, es una conexión al suelo que se usa, para desechar corrientes eléctricas indeseables, es decir, para evitar el paso de corriente debido a un fallo de aislamiento de los conductos. Cuando termines de leer este artículo podrás acomodar tu hogar con los puntos o puertos de luz que creas necesarios. Todas las tomas de corriente se conectan al conductor de fase, al neutro y al de tierra.